Properties| Student Info| Landlord Services| Maintenance Request
AdamBennett
01904 611611

Property Search

9 , Monkgate Cloisters| £215.00 pppw

RENT INCLUDES

FREE

Places of Interest
York City Centre 0.16 mi.
York St. John University 0.17 mi.
York District Hospital 0.58 mi.
York Train Station 0.78 mi.
University Of York 1.39 mi.
Heslington East Campus 2.15 mi.
Description
This lovely 4 bedroom town house in Monkgate Cloisters is a three minute walk to York St John's.

It has been fully refurbished to a very high standard and has been very successfully let as a prestigious holiday let for the past 2 years.

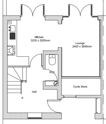
The new fitted kitchen includes oven, ceramic hob, fridge, dishwasher and microwave. The hall/utility room includes new 8kg washer, tumble drier and a further full height fridge freezer.

The lounge has a 50 inch smart TV with large sofa and views to the terrace at the rear of the property.

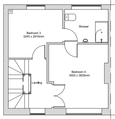
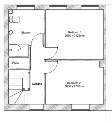
There are two large bedrooms with a Jack and Gill ensuite (shared) shower room/toilet and a further two large bedrooms and a second shower room/toilet on the second floor. Both shower rooms have newly installed large rain showers.

The house really is in a fantastic location, a three minute walk to York St John's, one minute walk to the large Monkbar Sainsbury's.

Parking for up to 2 cars available at an additional cost, contact landlord for more information.

Contact the landlord on 07969 275526 if you have any questions about this property.
Similar Properties
£184.99 pppw

"Stunning four bedroom property, a stone's throw from YSJ and with its very own balcony."

Only a short walk to York St John and a short cycle to York university, this end terrace house is in a quiet location and is a very close walk to Keystones, the city centre and has Sainsbury's at the end of the street.

The property comprises of a spacious ground floor lounge with TV, charming fireplace and two sofas. The large kitchen includes quality fitted units, fridge / freezer, oven, dining table and chairs, washing machine and microwave. Also on the ground floor is a utility room including tumble dryer, this leads to an additional store room. The first bedroom is situated on the ground floor.

On the first floor are the three remaining bedrooms, all equipped with wardrobe, desk, bed and chest of drawers. There is also a bathroom with shower over bath, and toilet. The sunny balcony can be accessed from the first floor, and is equipped with a table and chairs.

Gas, electric and water rates are included with the rent, broadband is not included but an allowance of up to £500 will be given to the group to use towards the broadband for the duration of the tenancy – this is usually one year.

York St. John University 0.21 mi.
University Of York 1.38 mi.
Heslington East Campus 2.12 mi.
£187.99 pppw

"Four bedroom student property in a superb location as close as you can get to York St. John!"

This four bedroom property is in a fantastic location. York St John University is practically on your doorstep! To get to the centre of York it's only around a ten minute walk. There are plenty of local amenities and shop nearby.

The house itself is made up of a contemporary kitchen which includes oven, fridge, freezer and washing machine. There is a lovely bright living room which houses a charming fireplace. The four bedrooms are airy and come with bed sets and storage furniture. There is a neat bathroom which includes a bathtub and a shower.

Gas, electric and water rates are included with the rent, broadband is free.

York St. John University 0.15 mi.
University Of York 1.53 mi.
Heslington East Campus 2.26 mi.
£189.99 pppw

"4 bedroom end of terrace"

Ground floor - lounge, modern, spacious kitchen, W/C and sink.
First floor - 4 bedrooms (one with en-suite - shower cubicle, W/C and sink), main bathroom with shower cubicle, bathtub, W/C and sink.
Small garage - suitable for bike storage.
Garden - to front, back and side.
House painted and re-carpeted June 2023.
For more information please call the landlord Sailash 07738685339.

Gas, electric and water rates are included with the rent, broadband is not included but an allowance of up to £500 will be given to the group to use towards the broadband for the duration of the tenancy – this is usually one year.

York St. John University 0.51 mi.
University Of York 1.19 mi.
Heslington East Campus 1.86 mi.
£189.99 pppw

"Spacious, modern student flat with 4 bedrooms and 2 bathrooms in a great location, overlooking the city walls!"

This is a fantastic four bedroom student flat, situated practically within the city centre (overlooking the city walls). The accommodation has a multitude of attractive features including spacious bedrooms and two bathrooms.

It takes just five minutes to get into the city centre from the flat, it's fifteen minutes to The University of York via Heslington Road and twenty minutes to York St John University . Due to the central location there are of course plenty of local amenities nearby. The Phoenix Inn (a pub with excellent TripAdvisor reviews) is only two minutes away and the Barbican is just three minutes away.

The accommodation comprises a spacious, open plan communal living area, with a modern kitchen, including a stainless steel oven and electric hob, fridge/freezer and washing machine. There is ample cupboard space within the fitted units. There is a comfortable living area, complete with a corner sofa. As this is a first floor flat, there is also an impressive sunny balcony that can be accessed from here, perfect for summer evenings.

There are four bedrooms, each equipped with; bed set, desk, chair, chest of drawers and wardrobe. One of the bedrooms has its own access to the balcony. There are two neat shower rooms, each equipped with shower, wash basin and toilet.

Gas, electric and water rates are included with the rent, broadband is free.

York St. John University 0.74 mi.
University Of York 0.99 mi.
Heslington East Campus 1.89 mi.